Integrate POWERCONNECT underfloor power into your design & create a solution which adapts to the requirements of a modern workplace.
Rethinking power solutions from the ground up.
POWERCONNECT is designed to distribute power sources to every part of the modern office in a cost-effective and flexible format. POWERCONNECT minimises material waste, reduces the carbon footprint of the building & enables a more agile working space – breaking the old rules defined by old technology.
Stop wasting materials & labour
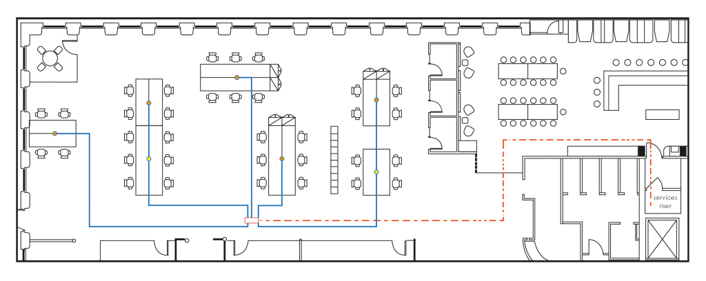
Why split a circuit under the floor, creating multiple penetrations and cable entry points, when we only need one? Bringing the 32A circuit through a single grommet, then distributing to the workstations from the RCBO protected built in sockets, the POWERBOX PDU offers neat efficient distribution, and protection is achieved, with less grommets, less tap-offs, less materials, and saving labour. 2, 4, 6, 8, or 10 outgoing GST connections, cover a variety of situations, with one single in-feed giving a much neater presentation under the workstations.
30 % reduction in costs*
50% reduction in labour*
Compare Components
BUSBAR System:
An underfloor Busbar system feeds each desk individually with a 32A tap-off. To power rows of desks, linear runs of busbars feed multiple taps offs via multiple grommets to multiple RCBO’s to multiple desks. Layouts are limited to a linear formations, with little flexibilty for an agile workspace.
POWERCONNECT:
POWERCONNECT is a flexible, modular power system. The 32A circuit is brought up through a single grommet -reducing grommets, unsightly cables, labour, carbon & cost!



